Typ budynku Budynek Opti
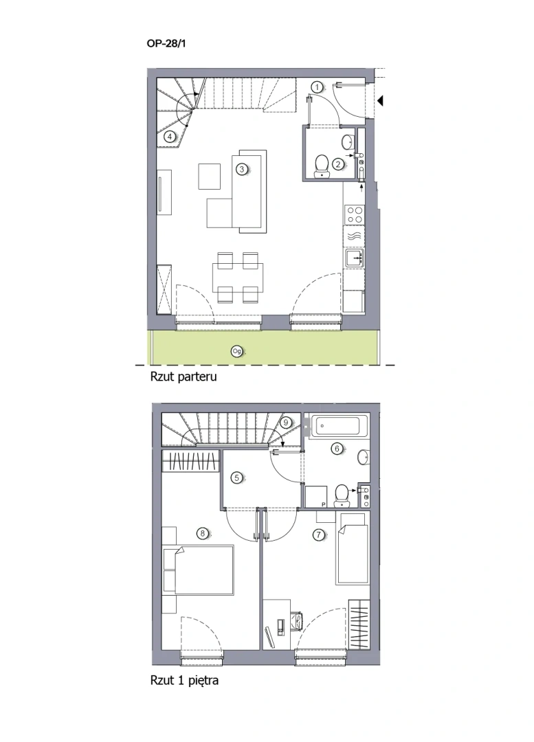
Opti OPTI to szeregowiec z dwupoziomowymi mieszkaniami o powierzchni 66 lub 79 m2. W każdym segmencie znajdują się 4 mieszkania, które wyposażone są we wspólną instalację fotowoltaiczną i pompę ciepła, co niesie za sobą wiele korzyści zarówna pod względem ekonomicznym, jak i ekologicznym.
Znajdziemy tu rozwiązania 3 lub 4 pokojowe. W ramach jednego wspólnego wejścia znajdują się cztery mieszkania oraz wspólny kocioł grzewczy dla wszystkich czterech mieszkań. Na parterze każdego z mieszkań znajduje się salon z aneksem kuchennym oraz toaleta. Na piętrze z kolei łazienka oraz dwie lub trzy sypialnie.

